アクセス良好の駅近マンションです。2LDK+C(コンサバトリー)の間取りで床暖付きです。徒歩圏内にスーパー・ドラッグストアがあります。国道沿いですが防音がしっかりしているので音も気になりません。マンションには管理員が常駐しているので日常生活のサポートをしていただけます。マンション内に温泉大浴場・プールがあり、いつでも好きな時に内湯や露天風呂・サウナがご利用いただけます。

物件概要
- 物件番号
- A250201
- 物件名
- ベルジューレ軽井沢
- 所在地
- 長野県北佐久郡軽井沢町大字軽井沢字塩沢道上
- 交 通
- 軽井沢駅から車で約3分 約1.9km
建 物
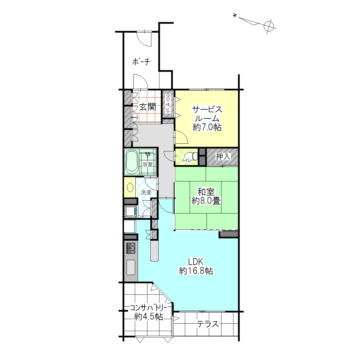
- 間 取
- 2LDK+C
- 建築年月
- 平成15年7月
- 規模/階数
- 3階建て/1階
- 専有面積
- 壁芯:82.11㎡(24.83坪)
- バルコニー
面積 - 4.92㎡
- 構 造
- 鉄筋コンクリート造3階建
管 理
- 管理会社
- 株式会社東急コミュニティー
- 専用駐車場
- ※1 備考参照
- 管理費
- ※2 備考参照
設 備
- ガ ス
- P.G
- 水 道
- 公営水道
- 電 気
- 中部電力㈱
- 排 水
- 本下水道
その他・備考
- 引 渡
- 現況
- 時 期
- 即可
- 取引態様
- 売主
- 備 考
-
・ペット可(ペット飼育・持込細則あり)
・共用施設:スポーツロッカー、バーデ施設、レストラン・バースペース
・※1 契約駐車場区画23台(月額13,000円)、フリー区画44台(無償)、臨時区画25台(無償・特定時期のみ)
・※2 管理費合計48,360円/月(内訳:管理費 31,700円、専用庭使用料 1,000円、修繕積立金 10,920円、温泉使用料 2,290円、下水使用料 1,390円、共用水道施設使用料 1,060円)
Contact お問い合わせ
Contact us
軽井沢の別荘・軽井沢の土地・軽井沢の事業用地・軽井沢の賃貸など
軽井沢の住まい・不動産に関する情報はタカラクリエイト